jueves, 27 de octubre de 2011
lunes, 5 de septiembre de 2011
sábado, 30 de julio de 2011
jueves, 30 de junio de 2011
Villa Botón (Alcalá la Real 1996)
LA MAQUETA
LOS PLANOS
Planta general
Alzado 1
Alzado 2
Alzado 3
Alzado 4
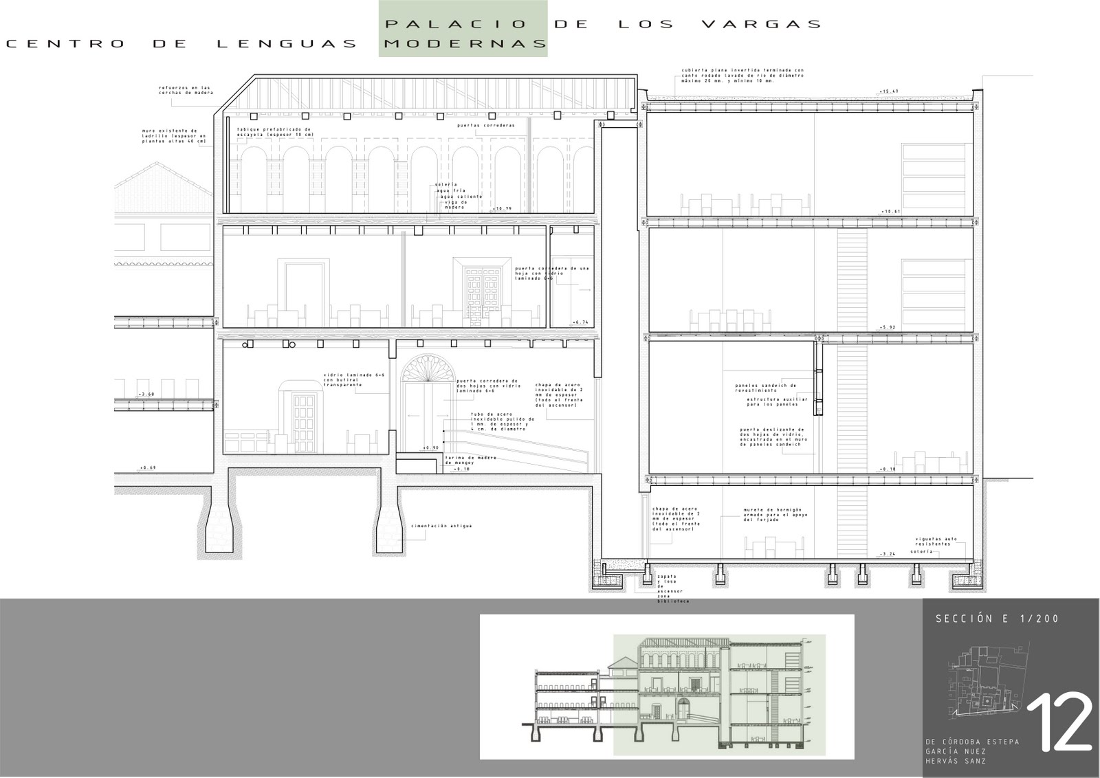
Sección transversal
Planta baja
Planta alta
Suscribirse a:
Comentarios (Atom)























































